1年間、家賃・水道光熱費が無料の【TOKYOβ MANGA-SO】シェアアパートがついに完成!

WEBTOONクリエイターのプロを目指す人が1年間家賃・水道光熱費も無料で入居できる家【TOKYOβMANGA-SO】が、マンガの聖地である東京都豊島区要町に誕生!
最適な環境でWEBTOON制作に打ち込むことができ、プロになるまでの手厚いサポートもご用意しています。


■支援内容
①一年間家賃無償&作品印税による出世払い方式
一年間家賃無償、ただしデビュー作品の売上に応じた印税の一部*1を2年間還元
②国内最大手のWEBTOONスタジオ「Studio No.9」と協業
Studio No.9の編集者による入居者のメンタリングサポートや、プロデビューまでの道のりを支援
▼Studio No.9
https://corp.no9.co.jp
③充実した制作環境を用意
各居室には作業用の机や椅子、ペンタブレット*2をご用意。共同スペースにはディスカッションしながら共同制作できる環境を整備。引っ越しはPC*3とスーツケース一つで済ませられるよう生活必需品も完備。
▼ワコムの液晶ペンタブレット

▼個室
▼共有スペース
*1:入居してから発生した印税総額5%を、入居日から2年間還元いただきます。ただし還元総額の最大は50万円とします。
*2:各個室に「Wacom Cintiq 16」を1台ずつ、さらに共有スペースには「Wacom Cintiq Pro 16」のご用意を予定しております。
*3:Intel Core i7-11800H SSD 512GB程度のスペックのPCと、CLIP STUDIO PAINT PRO CLIP STUDIO PAINT EXの契約を入居条件とします。
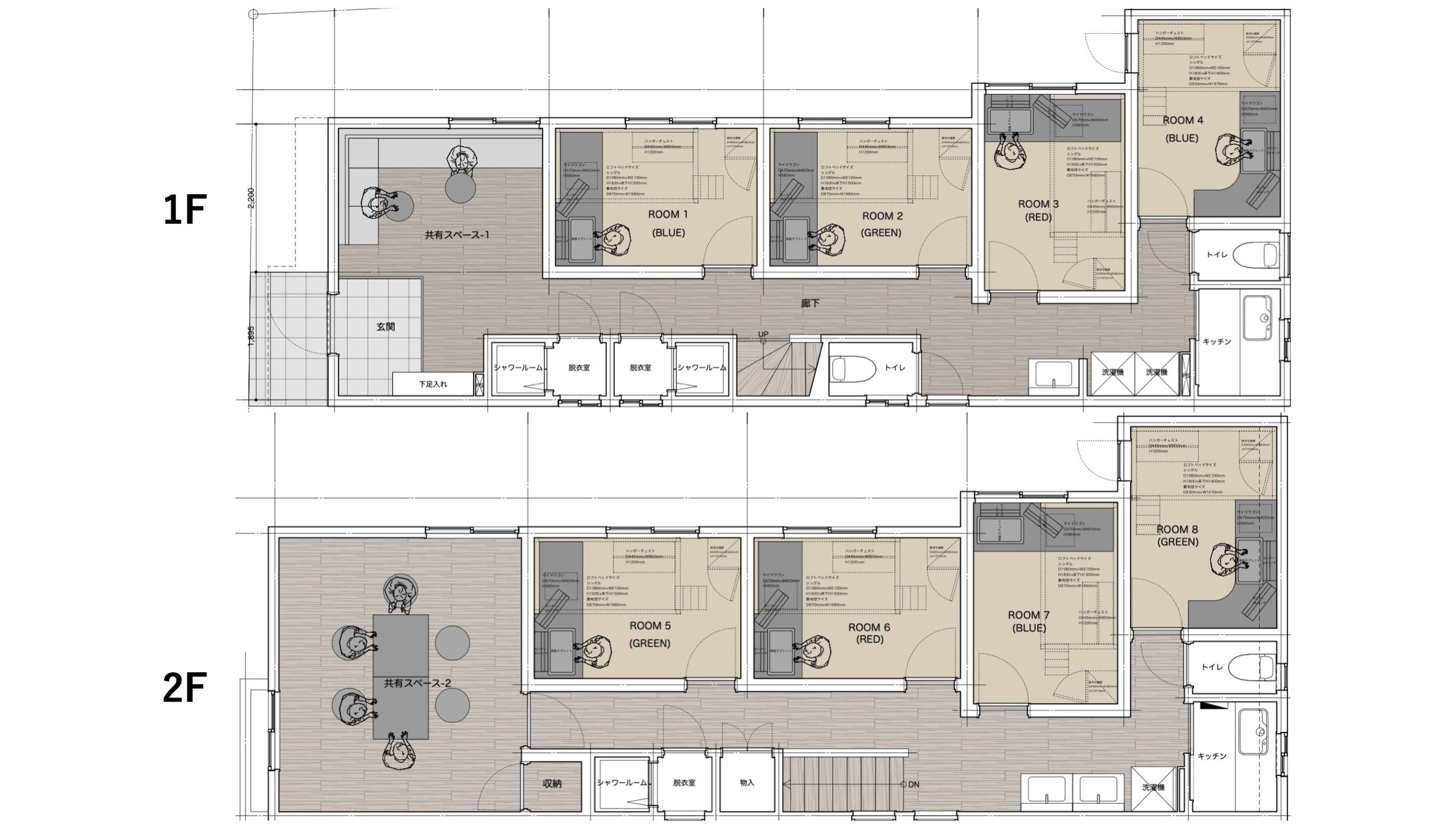
■間取り
個室全8室、共有スペース2室。

▼ルームナンバープレート
■応募方法
下記の応募フォームより、お申し込みください。
応募者多数の場合は抽選審査*になります。
*応募時にご提出いただくポートフォリオなどを拝見した上で「審査」に切り替えました。
