【募集終了】TOKYOβマンガ荘|家賃無料のWEBTOONクリエイター限定のシェアアパートの入居者募集中!

※本プロジェクトの入居者募集については終了致しました※
夢を追いかけて上京する若者を応援しているTOKYOβは、デジタルマンガのWEBTOONの制作に集中できる“WEBTOONクリエイター専門シェアアパート【TOKYOβMANGA-SO】”への入居者を募集します。
国内最大手のWEBTOONスタジオ『Studio No.9』と協業し、編集者によるデビュー前からの編集サポートを受けながら、WEBTOON制作に最適な環境で住みながら仕事をすることができます。
TOKYOβMANGA-SOへの入居応募は以下より受け付けております。
https://bit.ly/3QKqK6N ※募集終了
支援内容
①一年間家賃無料&作品印税による出世払い方式
TOKYOβMANGA-SOは、一年間家賃無料で好きなだけ作品に集中することができる住まいを提供します。東京でWEBTOONクリエイターのプロになりたいけど、東京の家賃で生活を継続させるのが難しいと思っていた方や、集中して作業する環境がなかったというWEBTOOONクリエイター志望の方におすすめです。その代わりにデビューした作品の印税の一部*1を入居日から2年間還元していただく「出世払い方式」を採用しています。
②国内最大手のWEBTOONスタジオ「Studio No.9」と協業
Studio No.9は、「すべての漫画を、 すべての人に。」をミッションに掲げるデジタルコミックエージェンシー。同社のWEBTOONクリエイターの編集サポートノウハウを活用して、入居するクリエイターのメンタリングを行うと共に、入居期間中デビューまでの道のりをサポートします。
▶Studio No.9 https://corp.no9.co.jp
③充実した制作環境を用意
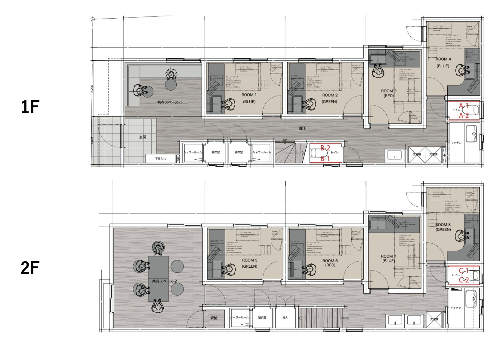
シェアハウス内の各居室には、快適な作業机・長時間座っても疲れない椅子を完備。さらに各部屋にはワコム液晶ペンタブレット*2を用意しました。1階と2階にそれぞれある共同スペースで、入居者同士で好きな作品について話し合ったり、一緒に作業することもできます。生活に必要な最低限のものは揃っているので、引っ越しは、PC*3とスーツケース一つで完了できます。

*1:入居してから発生した印税の5%を、入居日から2年間還元いただきます。ただし還元総額の最大は50万円とします。
*2:各個室に「Wacom Cintiq 16」を1台ずつ、さらに共有スペースにもワコム液晶ペンタブレットのご用意を予定しております。
*3:Intel Core i7-11800H SSD 512GB程度のスペックのPCと、CLIP STUDIO PAINT PRO CLIP STUDIO PAINT EXの契約を入居条件とします。
物件概要
- 立地
東京メトロ有楽町線/副都心線「要町駅」から徒歩約8分の好立地。池袋駅までも徒歩20分の場所で、要町駅から一駅で池袋駅に出ることができます。池袋駅は、東京メトロ有楽町線の他、東京メトロ副都心線、東京メトロ丸ノ内線、JR山手線、JR埼京線、東武東上線、西武池袋線が通るターミナル駅です。
要町駅には繁華街がありませんが、駅周辺にスーパーやドラッグストアがあり、TOKYOβMANGA-SOに帰る道に小さな商店街を通ります。都会に近いにもかかわらず、小さなコミュニティでのつながりもあるため、昔ながらの街の雰囲気も味わうことができます。
さらに、物件は閑静な住宅街の中にあるので作業に集中できる環境が整っています。少し先には小学校があるので、家族連れの一軒家住宅が多く、治安が良く住みやすい地区です。
- 家賃
家賃、光熱費、水道代、インターネット費用の全てが無料です。
通常は、月約7万円の家賃がかかる物件なため、実質年間約85万円分が無料となります。
- 間取り
個室全8室、共有スペースは2部屋用意しています。

応募方法
下記の応募フォームより、お申し込みください。
応募者多数の場合は抽選審査*になります。
*応募時にご提出いただくポートフォリオなどを拝見した上で「審査」に切り替えました。